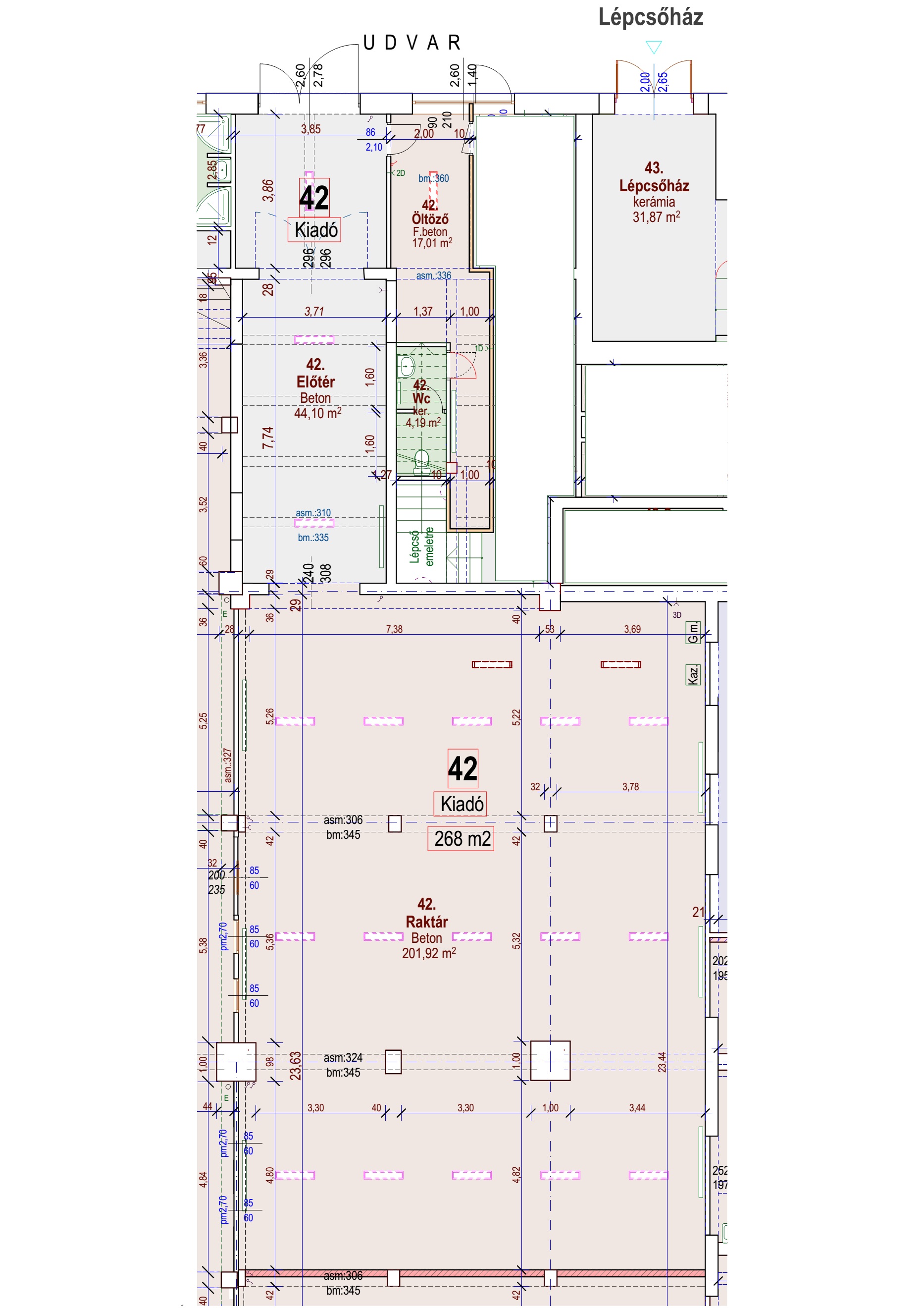
268 m² - Raktár
Leírás
A PP Center kiválóan megközelíthető, fűthető raktára.
Kiadó 6 m-es traktusokra osztott, 24 m mély raktár az üzleti központ III. épületben. Öltöző és vizesblokk kialakítva.
Megközelíthető a Szentendrei út felől a 3. kapun keresztül az északi útról.
Szabad belmagasság 3,45 m
Érezte már, hogy egy jó lokáció megkönnyíti az életét?
Itt minden adott az üzleti tevékenységéhez, sőt még a szabadidő eltöltéséhez is. 500 férőhelyes parkoló, éttermek, kávézók, bio- és gluténmentes pékségek, nyomdák, papír-, írószer, villamosság, ruházat, könyvelőiroda, kommunikációs és média ügynökségek, dizájn és egyéb boltok, képzőművészeti galéria, fotóstúdió és sport. Tömegközlekedve és személygépkocsival is jól megközelíthető. Elképesztő lehetőségek üzleti szinergia kialakítására jól menő cégek között, impozáns környezetben.
Forduljon hozzánk bizalommal! Kollégáink igény szerint állnak rendelkezésére, hogy ideális bérleményt találjon nálunk reális áron.
Telefon: +36309962962
| Azonosító: | PP42-Raktár |
| Terület (m2): | 268 |
| Funkció: | Raktár |
| Állapot: | Felújított |
| Fekvés: | É |
| Akciós: | |
| Kiadva: | |
| Terület: | 120-300 m2 |
| Golipark ajánlatban szerepel: |










